平成18年度卒業設計 優秀作品 2

表紙
透視図
設計要旨・面積表・設計地
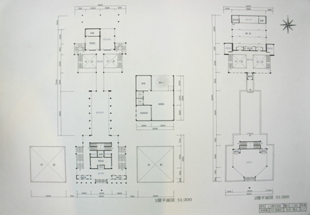
1,2階平面図
地下1階平面図
地下2階平面図
北・南立面図 断面図1
西・東立面図 断面図2
断面図3